698 S Huth Rd, Buffalo, NY 14225
Toggle Navigation
Images
Map
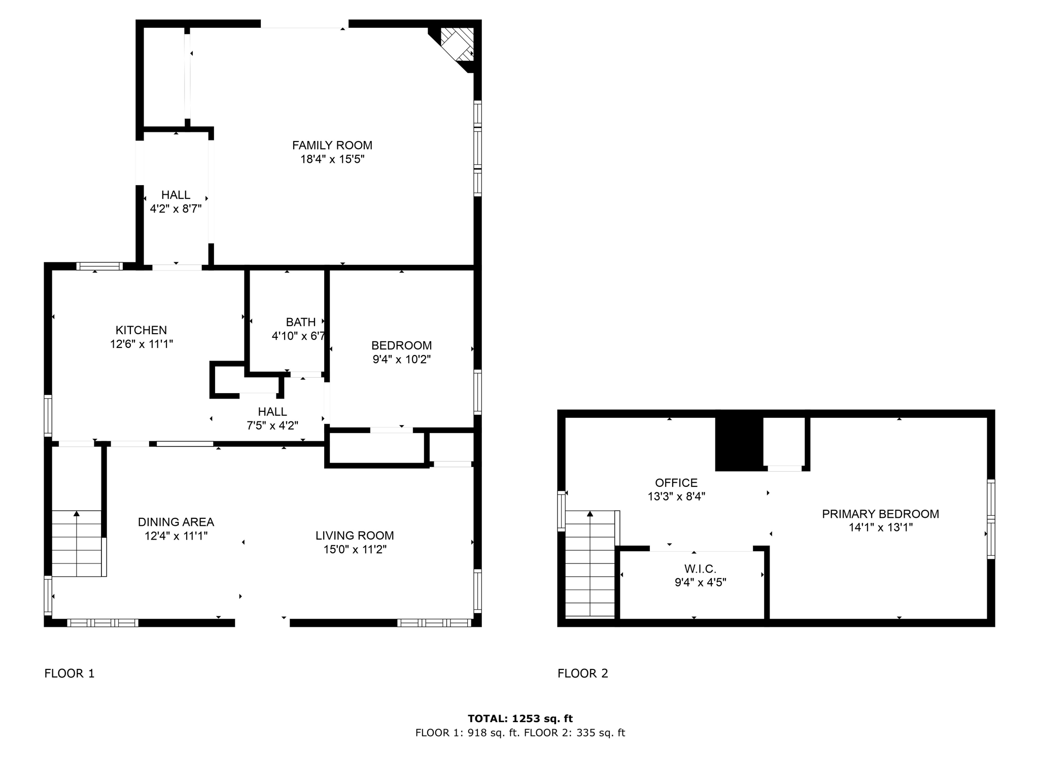
Floor Plans
698 S Huth Rd
Buffalo, NY 14225
Scroll to Content
Images
Slideshow
Photo Grid
Hide
Previous
Next
Show more
Floor Plans
Slideshow
Photo Grid
Hide
Previous
Next